56410 Erdeven
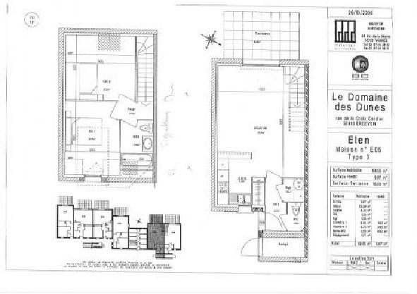
Maison mitoyenne
Maison mitoyenne
Maison mitoyenne dans residence sécurisée . Proche de la mer 3 KLM . 500 m du village . Exposition SUD , tres lumineux , Entrée placard WC , 2 grands placards , cuisine et salle de séjour ouvrant sur terrasse . A l'étage deux chambres avec placard , salle de bains , baignoire et toilette .
Extérieur garage Grande hauteur pour vélo , planche à voile , poussette etc
Chauffage électrique .
Extérieur garage Grande hauteur pour vélo , planche à voile , poussette etc
Chauffage électrique .
249 000 €
60 m²
Code Postal
56410
Ville
Erdeven
Type de bien
Maison
GES
B
Classe énergie
D
Mise en ligne
27 novembre 2025
Nombre de vues
1 911