22250 Broons
Longère en pierres
Longère en pierres
Je suis centenaire et mon dernier propriétaire m'a quitté définitivement après 70 ans de vie commune.
Malgré mon grand âge, je suis toujours présentable.
Ces 20 dernières années, je me suis offert une 2ème jeunesse avec notamment un ravalement de façade, une nouvelle coiffe et un aménagement de mon environnement extérieur.
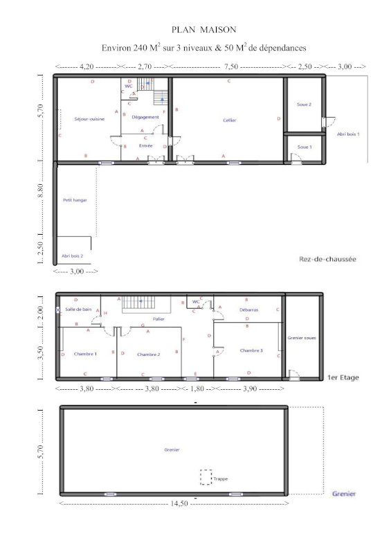
Sans être prétentieuse, je reste imposante avec mes 240M2 sur 3 niveaux et plus de 50M2 de dépendances, le tout en bordure d'une grande cour en enrobé jouxtant une pelouse et un vaste jardin (1280 M2), pour une superficie totale de 2330 M2.
Je dispose également de mon propre puits.
Les quelques photos vous permettront de mieux me connaître. D'autres photos sont disponibles sur demande si vous le désirez.
Je suis exposée sud et située au calme dans un hameau de campagne dans le pays de Dinan (Bretagne - Côtes d'Armor) à 5 km de Broons et Caulnes qui disposent de tous les services et commerces indispensables. Rennes, Saint Brieuc, Saint Malo et la plage sont à 1/2h de voiture. Paris à 2h en train.
Je vous attends, venez vite me rendre visite.
Malgré mon grand âge, je suis toujours présentable.
Ces 20 dernières années, je me suis offert une 2ème jeunesse avec notamment un ravalement de façade, une nouvelle coiffe et un aménagement de mon environnement extérieur.
Sans être prétentieuse, je reste imposante avec mes 240M2 sur 3 niveaux et plus de 50M2 de dépendances, le tout en bordure d'une grande cour en enrobé jouxtant une pelouse et un vaste jardin (1280 M2), pour une superficie totale de 2330 M2.
Je dispose également de mon propre puits.
Les quelques photos vous permettront de mieux me connaître. D'autres photos sont disponibles sur demande si vous le désirez.
Je suis exposée sud et située au calme dans un hameau de campagne dans le pays de Dinan (Bretagne - Côtes d'Armor) à 5 km de Broons et Caulnes qui disposent de tous les services et commerces indispensables. Rennes, Saint Brieuc, Saint Malo et la plage sont à 1/2h de voiture. Paris à 2h en train.
Je vous attends, venez vite me rendre visite.
189 500 €
200 m²
Code Postal
22250
Ville
Broons
Type de bien
Maison
GES
B
Classe énergie
E
Mise en ligne
26 février 2026
Nombre de vues
463