22400 Coëtmieux
Maison avec picsine
Maison avec picsine
Maison avec 5 chambres sur sous-sol en pierres.
sous sol avec chaudiére a fuel et machinerie piscine
1er:
1salle a manger 20 m2
1cuisine a amenagée
deux chambres
1salle de bain baignoire
1toilette
2ème:
trois chambres
un grand couloir
une salle de bain douche
Piscine 9*4 chauffée avec nage à contre courant.
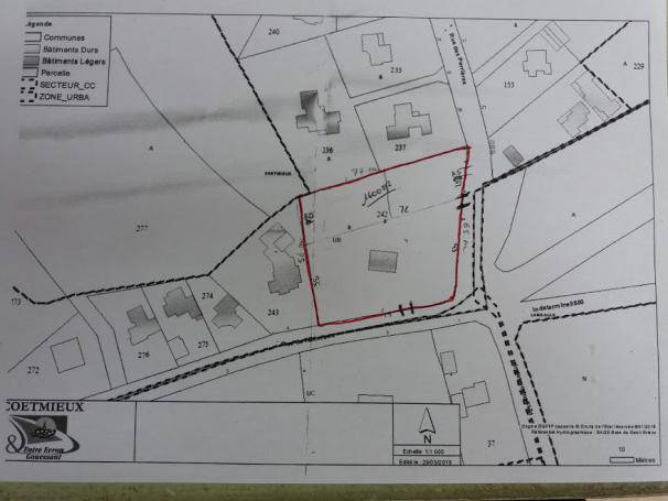
Jardin arboré de 4000 m² constructible.
possible de le divisé voir photo plan.
Gare a 5 minutes, à 2h30 de paris en voiture.
Zone commerciale de saint brieuc à 10 minutes en voiture.
Mer a 15 minutes en voiture.
Proximité RN12.
Dans un quartier calme.
sous sol avec chaudiére a fuel et machinerie piscine
1er:
1salle a manger 20 m2
1cuisine a amenagée
deux chambres
1salle de bain baignoire
1toilette
2ème:
trois chambres
un grand couloir
une salle de bain douche
Piscine 9*4 chauffée avec nage à contre courant.
Jardin arboré de 4000 m² constructible.
possible de le divisé voir photo plan.
Gare a 5 minutes, à 2h30 de paris en voiture.
Zone commerciale de saint brieuc à 10 minutes en voiture.
Mer a 15 minutes en voiture.
Proximité RN12.
Dans un quartier calme.
380 000 €
120 m²
Code Postal
22400
Ville
Coëtmieux
Type de bien
Maison
GES
En cours
Classe énergie
En cours
Mise en ligne
8 février 2026
Nombre de vues
5 837