35360 Landujan
LONGERE
LONGERE
longère de 190m2 se trouvant sur la commune de LANDUJAN
a 25minutes de rennes et 5 minutes de la 4 voies rennes st brieuc
10 minutes de la gare tgv de montauban de bretagne
NOUVEAU VISITE VIRTUEL DE DISPONIBLE SUR DEMANDE
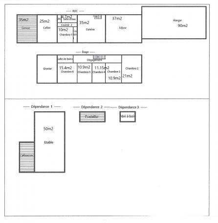
comprenant
RDC
1 chambre
1 salon
1 salle a manger cuisine
1 salle d eau
1 wc
A L ETAGE
5 chambres
1 salle de bain
en plus de cette surface habitable il y a
1 chaufferie de 25m2 avec chaudiere granulé de 2014
1 garage de 35m2 et un grenier
1 dependance de 55 m2
1 hangar de 90m2 avec grande hauteur ideal camping car
le tout sur un terrain de 2200m2 cloturé
une cour bittumée
assainissement tout a l egout
agence s abstenir
premier contact par mail merci
Landujan
(35360
MAISON ,MONTAUBAN DE BRETAGNE,BEDEE;BECHEREL
a 25minutes de rennes et 5 minutes de la 4 voies rennes st brieuc
10 minutes de la gare tgv de montauban de bretagne
NOUVEAU VISITE VIRTUEL DE DISPONIBLE SUR DEMANDE
comprenant
RDC
1 chambre
1 salon
1 salle a manger cuisine
1 salle d eau
1 wc
A L ETAGE
5 chambres
1 salle de bain
en plus de cette surface habitable il y a
1 chaufferie de 25m2 avec chaudiere granulé de 2014
1 garage de 35m2 et un grenier
1 dependance de 55 m2
1 hangar de 90m2 avec grande hauteur ideal camping car
le tout sur un terrain de 2200m2 cloturé
une cour bittumée
assainissement tout a l egout
agence s abstenir
premier contact par mail merci
Landujan
(35360
MAISON ,MONTAUBAN DE BRETAGNE,BEDEE;BECHEREL
298 000 €
190 m²
Code Postal
35360
Ville
Landujan
Type de bien
Maison
GES
En cours
Classe énergie
En cours
Mise en ligne
5 septembre 2025
Nombre de vues
7 792