35540 Plerguer
Maison de 123 m²
Maison de 123 m²
Maison construite en 2005, hors lotissement, sans vis à vis, 5/6 pièces, comprenant :
- Rez-de-chaussée : double séjour, cuisine aménagée, une chambre avec douche et lavabo.
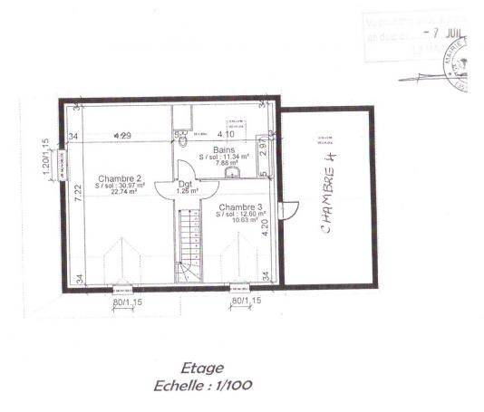
- Etage : 3 chambres, une salle de bains.
- Grand garage pour camping car, 2 terrasses 15 m² et 40 m², Terrain 1600 m², clôturé, arboré (cinquantaine d'arbres fruitiers), serre, tonnelle, portail et porte de garage sont motorisées, caméra de surveillance.
Située centre bourg, proche de toute commodité : Ecole, médecins, pharmacie, Super U, boulangerie, bus, Ter, TGV (8 km), 20 km de la plage de St Malo, 32 km de Mont Saint Michel.
En option. Possibilité d'acquérir plus de terrain, soit un total de 3581 m².
- Rez-de-chaussée : double séjour, cuisine aménagée, une chambre avec douche et lavabo.
- Etage : 3 chambres, une salle de bains.
- Grand garage pour camping car, 2 terrasses 15 m² et 40 m², Terrain 1600 m², clôturé, arboré (cinquantaine d'arbres fruitiers), serre, tonnelle, portail et porte de garage sont motorisées, caméra de surveillance.
Située centre bourg, proche de toute commodité : Ecole, médecins, pharmacie, Super U, boulangerie, bus, Ter, TGV (8 km), 20 km de la plage de St Malo, 32 km de Mont Saint Michel.
En option. Possibilité d'acquérir plus de terrain, soit un total de 3581 m².
290 000 €
123 m²
Code Postal
35540
Ville
Plerguer
Type de bien
Maison
GES
D
Classe énergie
En cours
Mise en ligne
25 janvier 2026
Nombre de vues
1 705