56200 Cournon
Maison de caractère
Maison de caractère
A 5mn de La Gacilly, un quart d’heure de Redon (accès direct à la zone commerciale).
Maison de bourg de 146M², lumineuse, très calme, belle exposition nord sud, 590M² de terrain.
Un parking en façade nord de 120M².
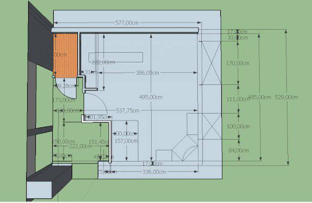
- Au RDC, actuellement, un 1er salon de : 30M², une cuisine : 19M² et deuxième salon : 23M² pouvant être réunis pour en faire un bel espace de vie.
De belles perspectives d’aménagements. (Voir plan « projet »).
Une cave de 14M² pouvant servir d’arrière cuisine, une chaufferie : 14M².
- A l’étage, 5 chambres et une salle de bain (voir plan « actuel » et « projet »).
Grenier sur la partie nord, env. 30M².
- Dépendances : 1 garage : 27M², une seconde cave : 18M², Grenier intégral sur garage et cave.
- 1 préau où il fait bon se poser à l’ombre en été : 11M².
Chauffage fuel. DPE demandé (en cours).
Mon N° 06 87 19 24 12 n’hésitez pas à me laisser un message si je ne suis pasen ligne.
Beaucoup de perspectives. Prévoir des travaux de rénovation.
Maison de bourg de 146M², lumineuse, très calme, belle exposition nord sud, 590M² de terrain.
Un parking en façade nord de 120M².
- Au RDC, actuellement, un 1er salon de : 30M², une cuisine : 19M² et deuxième salon : 23M² pouvant être réunis pour en faire un bel espace de vie.
De belles perspectives d’aménagements. (Voir plan « projet »).
Une cave de 14M² pouvant servir d’arrière cuisine, une chaufferie : 14M².
- A l’étage, 5 chambres et une salle de bain (voir plan « actuel » et « projet »).
Grenier sur la partie nord, env. 30M².
- Dépendances : 1 garage : 27M², une seconde cave : 18M², Grenier intégral sur garage et cave.
- 1 préau où il fait bon se poser à l’ombre en été : 11M².
Chauffage fuel. DPE demandé (en cours).
Mon N° 06 87 19 24 12 n’hésitez pas à me laisser un message si je ne suis pasen ligne.
Beaucoup de perspectives. Prévoir des travaux de rénovation.
90 000 €
146 m²
Code Postal
56200
Ville
Cournon
Type de bien
Maison
GES
En cours
Classe énergie
En cours
Mise en ligne
25 novembre 2025
Nombre de vues
1 928